搜索
热门搜索: 美国中克塞尔美国世铨美国特迪亚美国传力德国HBM梅特勒托利多
产品中心
    当前位置: 首页  > 产品中心  > 称重模块  > 小量程称重模块

    Z-BLOK-1Klb称重模块,美国BLH NOBEL品牌Z-BLOK-1Klb称重传感器称重模块

    产品介绍

    一、Z-BLOK-1klb称重模块产品介绍

    产品品牌:美国BLH NOBEL
    产品系列:Z-BLOK
    产品类型:称重模块
    产品量程:1klb

    产品介绍:
    (1)Z-BLOK称重模块专为满足库存和过程称重应用的要求而设计。无止回设计(无撑杆或止回棒)、低剖面和均匀的螺栓间距简化了新容器或现有容器上的安装。整体扩展组件、双悬臂设计和温度补偿全桥传感器最大限度地降低了温度影响,允许在室内或室外的几乎任何环境中进行精确测量。
    (2)当抗震或抗风是结构设计要求时,ANSI/ASCE合格设计在作为传感器的性能和作为结构构件的强度之间提供了有效的平衡。
    (3)由搅拌机扭矩、振动或其他外力引起的高达100%满量程的侧向负载实际上对重量测量没有影响。
    (4)整体电缆导管配件、密封应变计和不锈钢传感器确保在潮湿或冲洗位置使用寿命长。高过载能力、球墨铸铁安装硬件和高强度装配螺栓使Z-BLOK能够在其他产品失败的地方生存下来。

    产品特点:
    (1)容量范围:500、1K、2K、5K、10K、20K和50K磅(227、454、907、2.27K、4.5K、9K和22.7K千克)
    (2)“无止回”设计——不需要撑杆或止回杆
    (3)薄型整体热膨胀组件简化了安装
    (4)旨在满足ANSI/ASCE风荷载和抗震要求
    (5)双悬臂设计提高了系统性能和精度
    (6)FM和CSA认证

    产品应用:
    (1)库存筒仓
    (2)储罐
    (3)过程容器


    二、Z-BLOK称重模块相关量程

    Z-BLOK-500lb
    Z-BLOK-1klb
    Z-BLOK-2klb
    Z-BLOK-5klb
    Z-BLOK-10klb
    Z-BLOK-20klb
    Z-BLOK-50klb


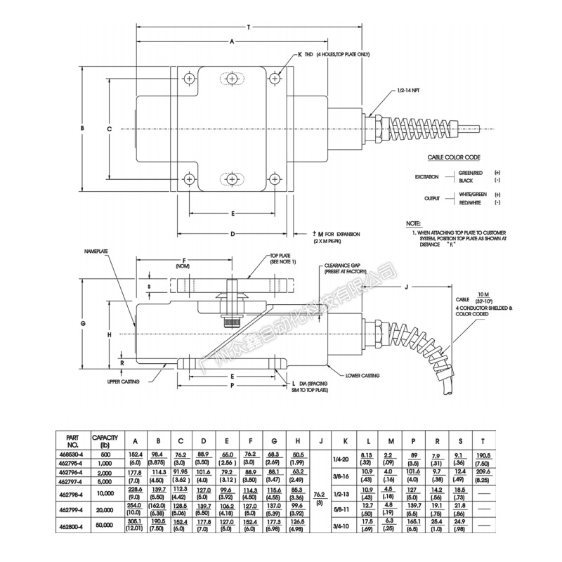
    三、Z-BLOK-1klb称重模块技术参数

    四、Z-BLOK-1klb称重模块产品尺寸

    五、Z-BLOK-1klb称重模块产品图片
    产品推荐

    联系我们
    联系方式

    销售热线:

    陈小姐:18520271262

      陈小姐:18688494254

    黄先生:18688492451

      黄先生:18520471262

    上班时间:

    周一到周六9:00-18:00

    二维码
    扫一扫联系我们